Back to search results
ACTIVE
$919,280
2681 Sassafrass CourtProsper, TX 75078
4
beds
4
baths
3,385
sqft
2-car
garage
Standard payment est:$5,702/mo
About this home
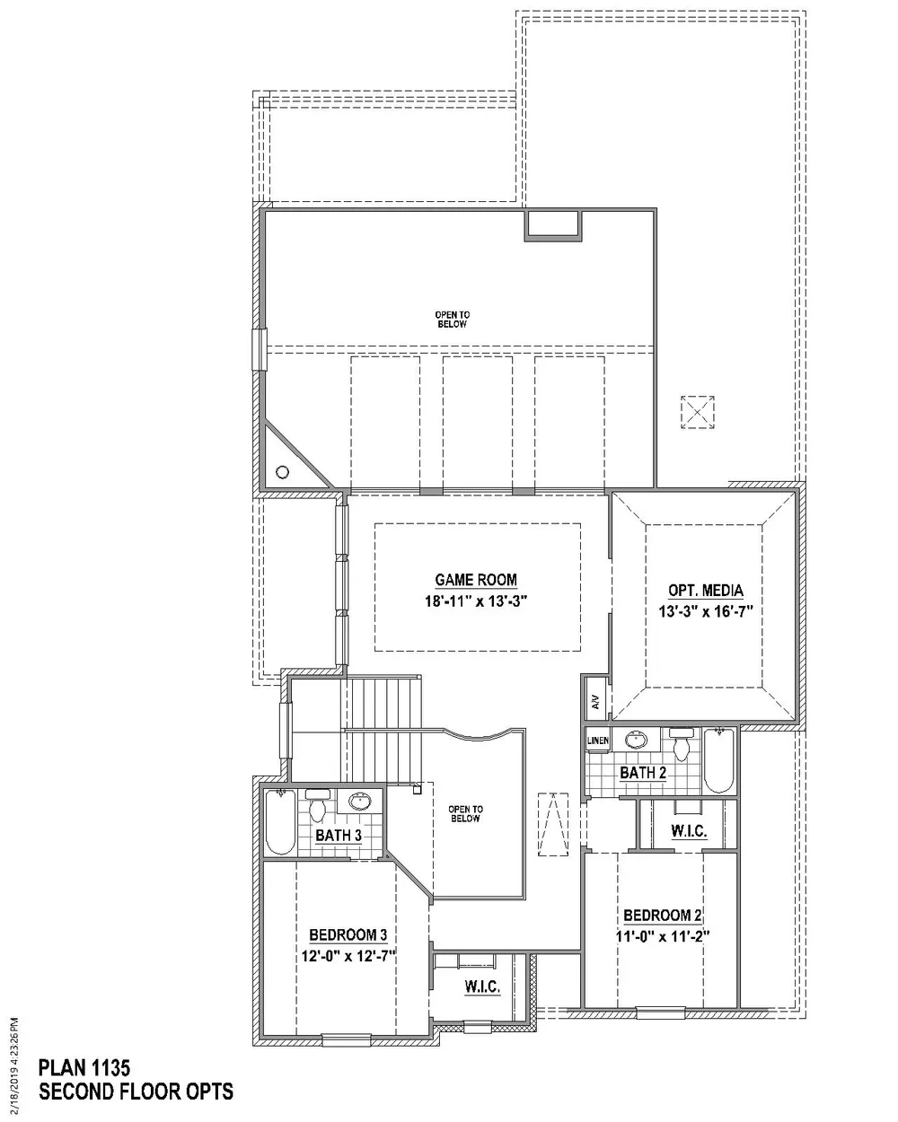
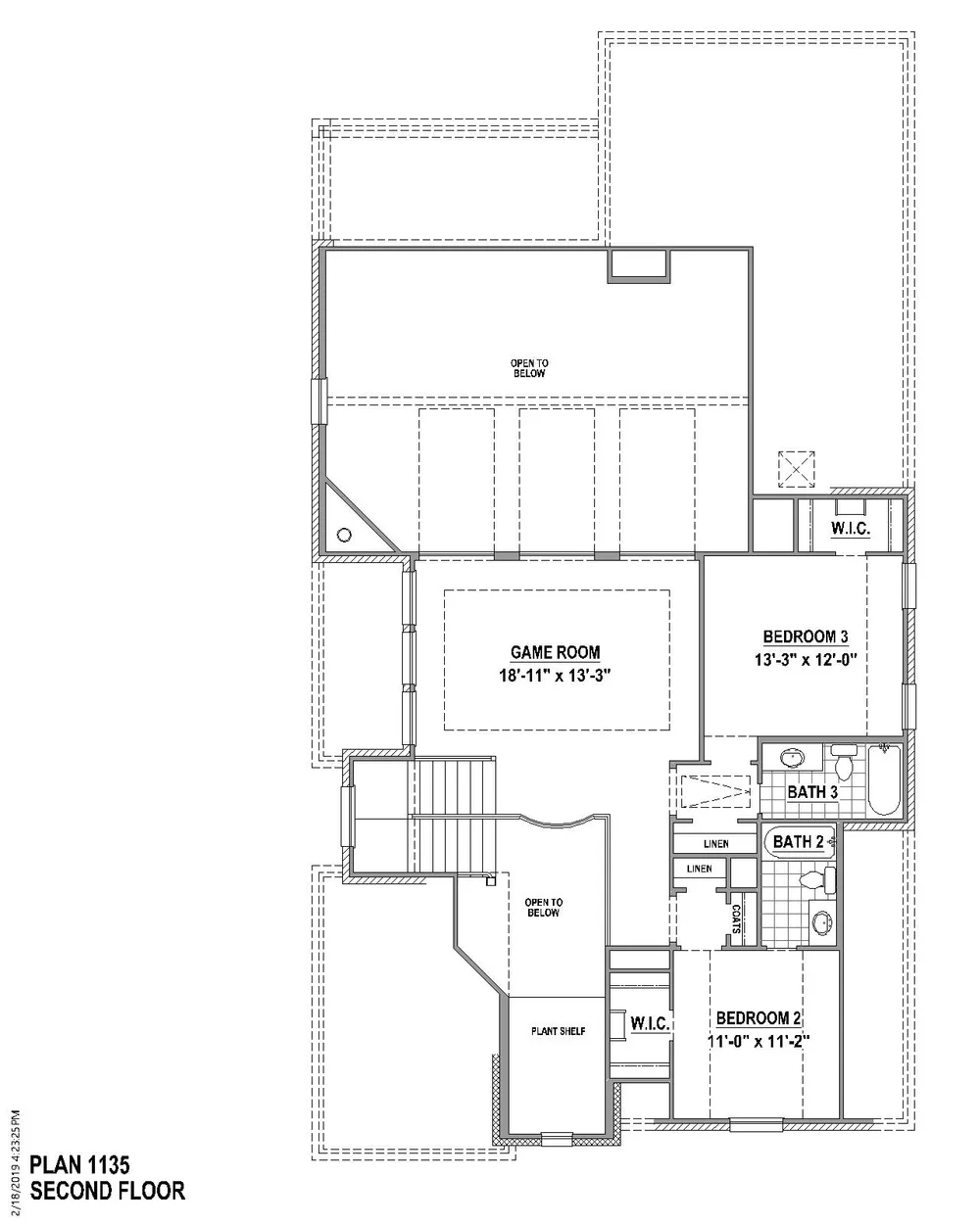
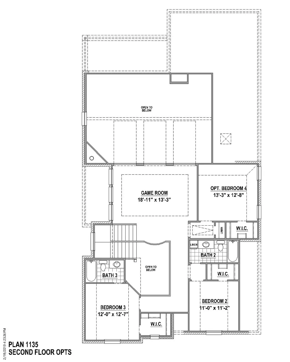
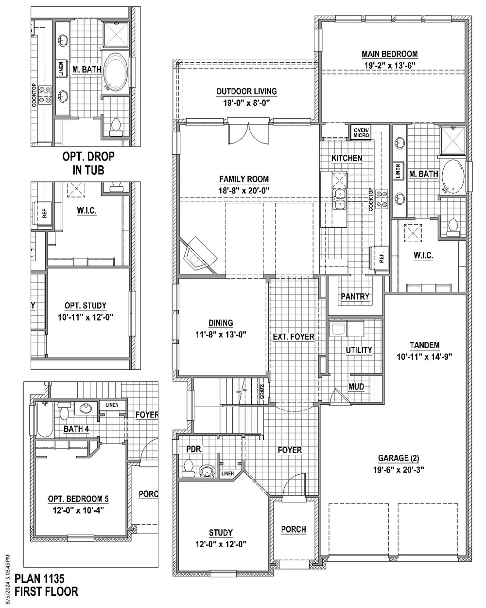
Welcome to this exceptional four-bedroom home in the highly sought after Star Trail community, perfectly situated on a desirable North facing lot. Thoughtfully designed for both comfort and convenience, the first floor features a spacious primary suite along with a private secondary bedroomideal for guests or multigenerational living. A tucked away study provides a quiet, secluded workspace, perfect for productivity.The heart of the home showcases an impressive living room and gourmet kitchen, both enhanced by soaring cathedral ceilings that create an open, airy ambiance. French doors lead to a covered veranda, extending your living space outdoors and offering the perfect setting for relaxation or entertaining.Upstairs, youll find two additional bedrooms, each with its own ensuite bath, ensuring comfort and privacy for everyone. A generous game room and a fully wired media room complete the second level, delivering endless options for recreation and movie nights.This home is beautifully appointed with extensive hardwood flooring, upgraded lighting, premium countertops, designer tile selections and many more elevated finishes throughout. Combining luxury, functionality and an ideal layout, this Star Trail gem truly has it all.
Floor plan4 images
Specifications
Address
2681 Sassafrass Court
City, St, Zip
Prosper, TX 75078
Price
$919,280
Bedrooms
4
Full baths
4
Square Feet
3,385
Garages
2-Car
Status
ACTIVE
Estimated completion date
7/31/2026
Builder
American Legend Homes
Map
6
photos
EXTERIORINTERIORFLOORPLANFLOORPLANFLOORPLANFLOORPLAN
125 S. Kansas Avenue | Olathe, KS | 913-732-8070
©2026 Homebuilders.com. All rights reserved.
Privacy Policy