Back to search results
ACTIVE
$704,500
7629 Whisterwheel WayFort Worth, TX 76123
4
beds
4
baths
3,317
sqft
2-car
garage
Standard payment est:$4,370/mo
About this home
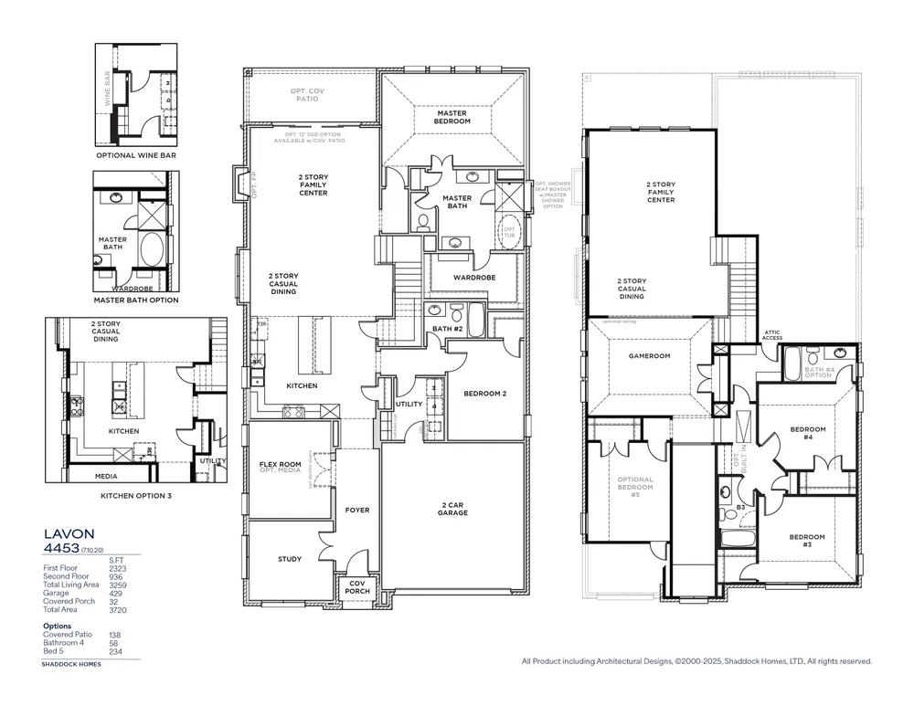
Discover this beautifully crafted new-construction Shaddock Home, thoughtfully designed with a well-balanced floor plan and timeless transitional style. Filled with abundant natural light, this spacious residence showcases refined finishes and intentional design throughout, with an impressive family room featuring soaring 20-foot ceilings that create a bright, open setting ideal for both everyday living and entertaining. The gourmet kitchen serves as a true centerpiece, highlighted by sleek quartz countertops, stainless steel built-in appliances, and an oversized island perfect for gathering and hosting. The expansive primary suite offers a private retreat with a spa-inspired bath that includes a soaking tub, walk-in shower, and generous closet space. The main level also features a private study, a secondary guest bedroom, and a versatile flex room ideal for a second office, media room, or playroom. Ideally located just minutes from downtown and The Shops at Clearfork, this exceptional home blends everyday convenience with refined elegance, making it an opportunity you will not want to miss.
Floor plan1 image
Specifications
Address
7629 Whisterwheel Way
City, St, Zip
Fort Worth, TX 76123
Price
$704,500
Bedrooms
4
Full baths
4
Square Feet
3,317
Garages
2-Car
Status
ACTIVE
Builder
Shaddock Homes
Community
Tavolo Park
Map
3
photos
EXTERIORINTERIORFLOORPLAN
125 S. Kansas Avenue | Olathe, KS | 913-732-8070
©2026 Homebuilders.com. All rights reserved.
Privacy Policy