Back to search results
ACTIVE
$995,000
404 BroadmoorHaslet, TX 76052
4
beds
3+
baths
3,817
sqft
3-car
garage
Standard payment est:$6,172/mo
About this home
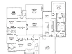
Welcome to your dream homewhere luxury meets functionality. Upon entering, you're greeted by the private owner's study, just off the foyer. Just ahead is the inviting great room. This open living area features a soaring vaulted ceiling and a wall of slider glass doors off the living. This custom-designed residence boasts an open-concept layout, seamlessly connecting the expansive family room, gourmet kitchen, and elegant dining areaall overlooking the oversized covered patio with an inviting outdoor grill, ideal for year-round entertaining. The owner's suite occupies its own private wing on the right side of the home, offering serene views of the lush backyard. The spa-inspired owner's bath features a large walk-in shower, a freestanding soaking tub, dual vanities, and a spacious walk-in closet shared bath. On the opposite side of the home, you'll the find three secondary bedrooms. One offers its own private bath, perfect for guest or mother in-law suite. The other 2 secondary bedrooms have jack and jill shared bath. A separate game room or flex room is at the back or the home, offering a perfect retreat for kids or a casual entertaining space. This exceptional home is ready now and is sure to go fast.
Floor plan1 image
Specifications
Address
404 Broadmoor
City, St, Zip
Haslet, TX 76052
Price
$995,000
Bedrooms
4
Full baths
3
Half baths
1
Square Feet
3,817
Garages
3-Car
Status
ACTIVE
Estimated completion date
2/18/2026
Map
1
photos
FLOORPLAN
125 S. Kansas Avenue | Olathe, KS | 913-732-8070
©2026 Homebuilders.com. All rights reserved.
Privacy Policy