Back to search results
ACTIVE
$416,324
829 Dogwood LaneLavon, TX 75166
3
beds
2
baths
1,848
sqft
2-car
garage
Standard payment est:$2,582/mo
About this home
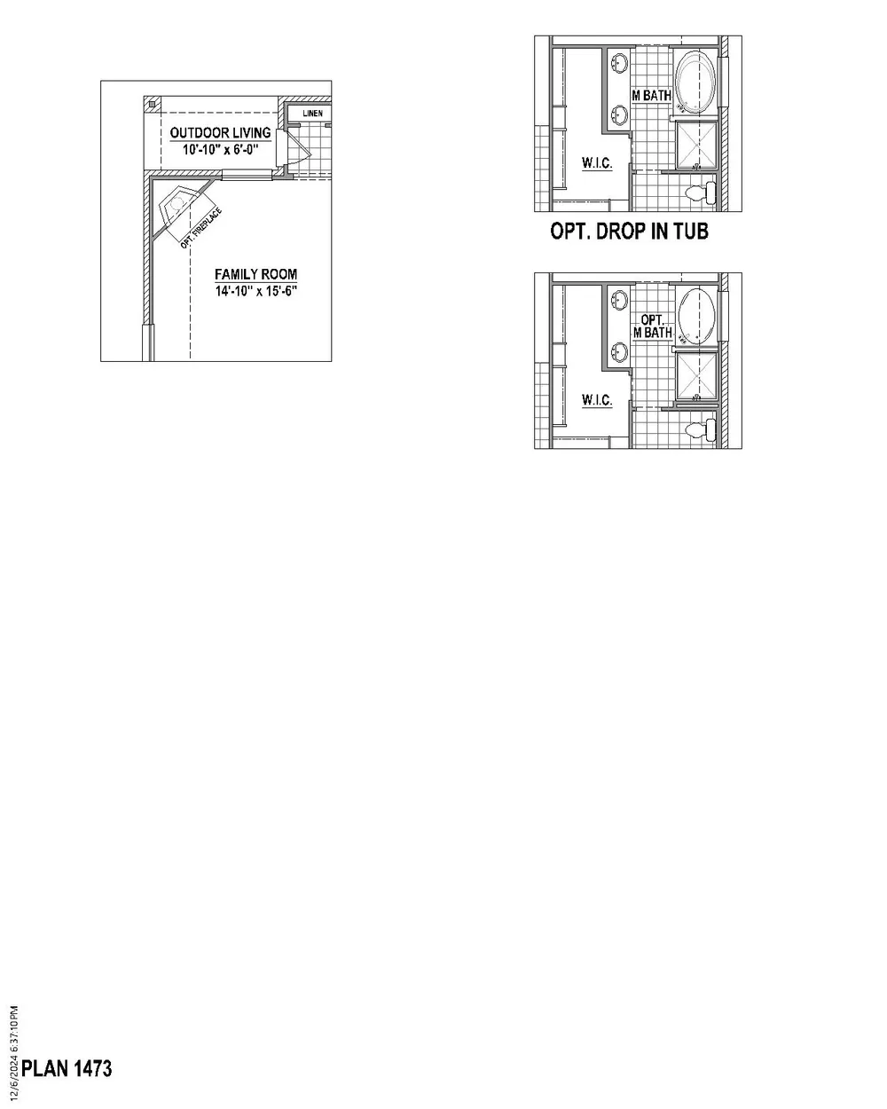
Welcome to this beautiful American Legend home that was designed for the way you live. This thoughtfully crafted single-story home offers 3 bedrooms, 2 bathrooms and a private study with elegant French doors. Tall ceilings and an abundance of windows fill the home with natural light, giving every room an airy, welcoming feel. At the heart of the home is the spacious main living area, which is anchored by a sleek electric fireplace and opens to the dining area and the beautifully appointed kitchen. The chefs kitchen features plentiful counter space and cabinetry, a walk-in pantry and a large center island, ideal for hosting gatherings, preparing meals or enjoying relaxed everyday living. The owner's retreat is conveniently situated at the back of the home, offering a private, peaceful escape from the every day. Step outside to the covered patio where shaded afternoons and cozy evenings invite outdoor entertaining or simple relaxation. From the thoughtful layout to the impressive details, this home is designed to make every moment feel just right.
Floor plan3 images
Specifications
Address
829 Dogwood Lane
City, St, Zip
Lavon, TX 75166
Price
$416,324
Bedrooms
3
Full baths
2
Square Feet
1,848
Garages
2-Car
Status
ACTIVE
Estimated completion date
5/31/2026
Builder
American Legend Homes
Map
5
photos
EXTERIORINTERIORFLOORPLANFLOORPLANFLOORPLAN
125 S. Kansas Avenue | Olathe, KS | 913-732-8070
©2026 Homebuilders.com. All rights reserved.
Privacy Policy