Back to search results
ACTIVE
$975,000
4801 Strada StreetCelina, TX 75078
4
beds
4+
baths
4,323
sqft
3-car
garage
Standard payment est:$6,048/mo
About this home
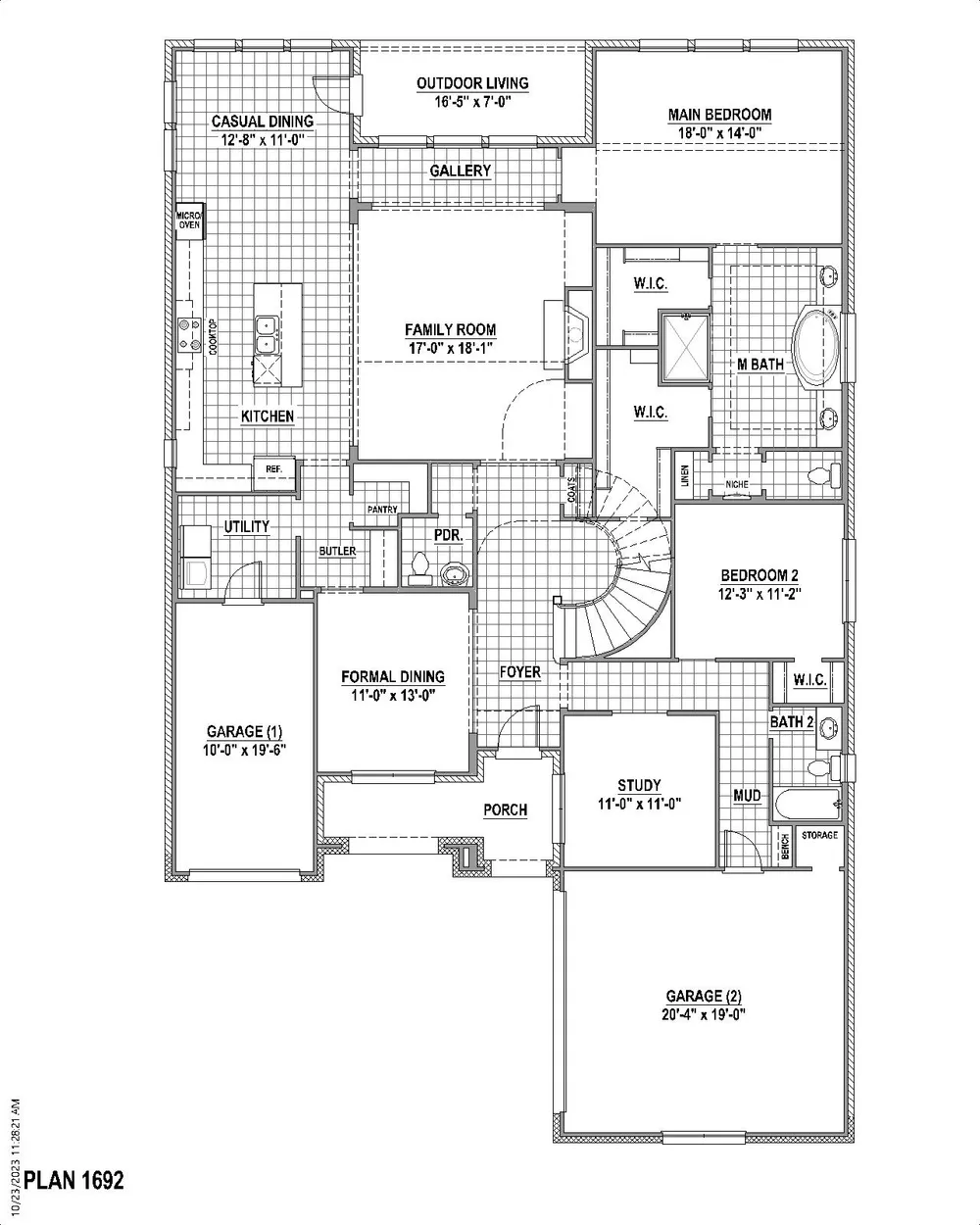
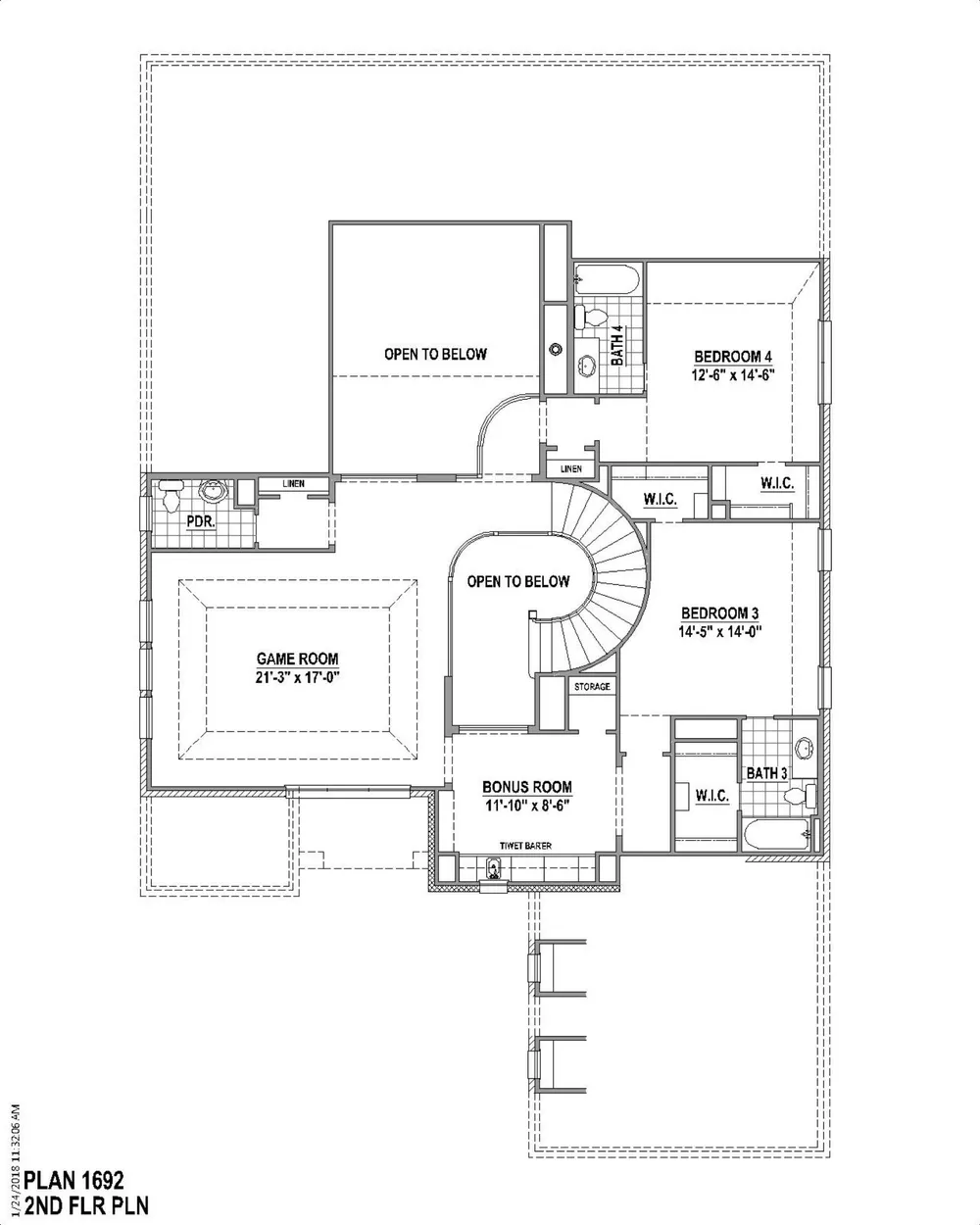
This breathtaking 2-story design has it all featuring 4 bedrooms, 4 full bathrooms, 2 powder bathrooms, 2 dining areas, study, game room, media room, bonus room and a 3-car split garage! As you enter the home off the private porch, you are greeted by the formal dining area and a secluded study, perfect for a home office or exercise room. Across the hall lies a secondary bedroom with a walk-in closet and access to a full-size bathroom. At the heart of the home is the open and inviting family room that features a gorgeous fireplace and views of the outdoor living area. The kitchen is a chef's dream offering a center island, tons of counter space, corner pantry and a butler's pantry with direct access to the formal dining room. Ideally situated on the first floor, the main bedroom retreat boasts two walk-in closets and an amazing en-suite bathroom complete with a glass enclosed walk-in shower and dual vanities separated by a freestanding tub, perfect for relaxing. A luxurious curved staircase takes you to the second floor where you will find an oversized game room, powder bath, bonus room, media room and two secondary bedrooms with walk-in closets and full-size bathrooms. This home also showcases gorgeous cathedral ceilings on an Oversized lot that faces East.
Floor plan4 images
Specifications
Address
4801 Strada Street
City, St, Zip
Celina, TX 75078
Price
$975,000
Bedrooms
4
Full baths
4
Half baths
2
Square Feet
4,323
Garages
3-Car
Status
ACTIVE
Estimated completion date
5/31/2026
Map
6
photos
EXTERIORINTERIORFLOORPLANFLOORPLANFLOORPLANFLOORPLAN
125 S. Kansas Avenue | Olathe, KS | 913-732-8070
©2026 Homebuilders.com. All rights reserved.
Privacy Policy