Back to search results
ACTIVE
$409,990
7628 Kingfisher RoadAubrey, TX 76227
5
beds
3
baths
2,660
sqft
2-car
garage
Standard payment est:$2,543/mo
About this home
Welcome home to the Holden! This four bedroom, three bathroom plan offers generous space for entertaining and everyday living. The expansive living area flows seamlessly into a gourmet kitchen with a center island, while the primary suite is tucked away for a peaceful retreat. Three additional bedrooms provide ample opportunities for customization, whether for a home office, guest room, or extra storage.
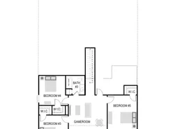
Floor plan3 images
Specifications
Address
7628 Kingfisher Road
City, St, Zip
Aubrey, TX 76227
Price
$409,990
Bedrooms
5
Full baths
3
Square Feet
2,660
Garages
2-Car
Status
ACTIVE
Estimated completion date
1/8/2026
Builder
Trophy Signature Homes
Map
34
photos
EXTERIORINTERIORINTERIORINTERIORINTERIORINTERIORINTERIOR
125 S. Kansas Avenue | Olathe, KS | 913-732-8070
©2026 Homebuilders.com. All rights reserved.
Privacy Policy