Back to search results
ACTIVE
$669,900
207 Oak Crest DriveJustin, TX 76247
4
beds
3+
baths
3,844
sqft
3-car
garage
Standard payment est:$4,155/mo
Get pre-qualified
About this home
This beautifully designed Monte Carlo model home showcases numerous upgraded features and high-end finishes throughout. Highlights include elegant hand-scraped hardwood flooring, 3cm quartz countertops, glass-front upper kitchen cabinets, and stylish accent walls. The primary suite features upgraded box bay windows, while the kitchen boasts a wall oven tower for added convenience. Enjoy the private study with French doors, charming Juliet balconies upstairs, and a floating bar with shiplap detailing in the game room, perfect for entertaining.Furniture not included. Floor plan may not be 100% accurate.
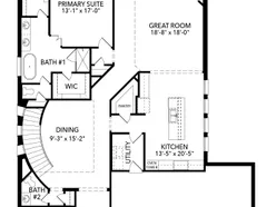
Floor plan2 images
Specifications
Address
207 Oak Crest Drive
City, St, Zip
Justin, TX 76247
Price
$669,900
Bedrooms
4
Full baths
3
Half baths
1
Square Feet
3,844
Garages
3-Car
Status
ACTIVE
Estimated completion date
1/13/2019
Map
22
photos
INTERIORINTERIORINTERIORINTERIORINTERIORINTERIORINTERIOR
125 S. Kansas Avenue | Olathe, KS | 913-732-8070
©2025 Homebuilders.com. All rights reserved.
Privacy Policy