Back to search results
ACTIVE
$409,990
836 Stone Grove RoadLavon, TX 75166
3
beds
2
baths
1,848
sqft
2-car
garage
Standard payment est:$2,543/mo
Get pre-qualified
About this home
Discover comfort and elegance in this gorgeous single story home, thoughtfully designed for modern living. Step inside to an open-concept layout that seamlessly connects the spacious family area, dining room and kitchen, creating an ideal setting for gatherings and peaceful evenings by the cozy fireplace that adds warmth and charm to the heart of the home. Large windows fill the space with natural light, enhancing the home's airy feel and welcoming glow throughout the day. A private study offers the ideal spot for working from home or enjoying a quiet reading nook. The chef-inspired kitchen features a grand island and custom cabinetry, offering both beauty and functionality- a true delight for those who like to cook and entertain. Enjoy peaceful mornings on the inviting front porch and unwind in the evenings under the covered backyard patio, an ideal space for outdoor dining or simply relaxing after a long day. Nestled within the beautiful Hillstead community in Lavon, this home combines style, comfort and convenience- a place you'll truly love coming home to.
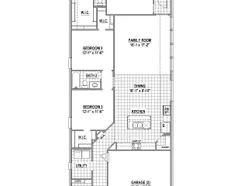
Floor plan2 images
Specifications
Address
836 Stone Grove Road
City, St, Zip
Lavon, TX 75166
Price
$409,990
Bedrooms
3
Full baths
2
Square Feet
1,848
Garages
2-Car
Status
ACTIVE
Estimated completion date
12/16/2025
Builder
American Legend Homes
Map
31
photos
EXTERIORINTERIORINTERIORINTERIORINTERIORINTERIORINTERIOR
125 S. Kansas Avenue | Olathe, KS | 913-732-8070
©2025 Homebuilders.com. All rights reserved.
Privacy Policy