Back to search results
ACTIVE
$699,000
624 Damsel June StreetLewisville, TX 75056
4
beds
3
baths
2,539
sqft
2-car
garage
Standard payment est:$4,336/mo
About this home
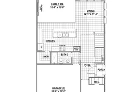
This beautiful townhome, built by renowned builder American Legend Homes, is located in the highly sought-after Castle Hills master-planned community in Lewisville, TX. Featuring 4 spacious bedrooms, 3 full baths, game room and 2-car garage, this home blends the comforts of single-family living with the low-maintenance lifestyle of a townhome. The 4th bedroom is a guest bedroom downstairs. The main bedroom, upstairs, offers a peaceful retreat with plenty of natural light and modern finishes. The open-concept living area is filled with natural light, thanks to floor-to-ceiling windows, customized with wood floors downstairs. The heart of the home is its state-of-the-art kitchen, perfect for cooking and entertaining. With high-end appliances, quartz countertops, custom cabinets and a functional layout, this kitchen will impress even the most discerning chefs. Enjoy movie nights and endless fun with the dedicated game room, providing the ultimate space for relaxation and entertainment. Whether you're hosting gatherings or enjoying quiet moments, this townhome offers the perfect blend of luxury, comfort and convenience, all within the prestigious Castle Hills Northpointe community. This townhome sits on an oversized lot backing to greenspace.
Floor plan2 images
Specifications
Address
624 Damsel June Street
City, St, Zip
Lewisville, TX 75056
Price
$699,000
Bedrooms
4
Full baths
3
Square Feet
2,539
Garages
2-Car
Status
ACTIVE
Estimated completion date
2/9/2026
Builder
American Legend Homes
Map
31
photos
EXTERIORINTERIORINTERIORINTERIORINTERIORINTERIORINTERIOR
125 S. Kansas Avenue | Olathe, KS | 913-732-8070
©2026 Homebuilders.com. All rights reserved.
Privacy Policy