Back to search results
ACTIVE
$689,000
728 Treeline WayMansfield, TX 76063
4
beds
4+
baths
3,141
sqft
3-car
garage
Standard payment est:$4,274/mo
About this home
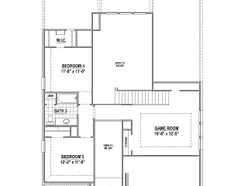
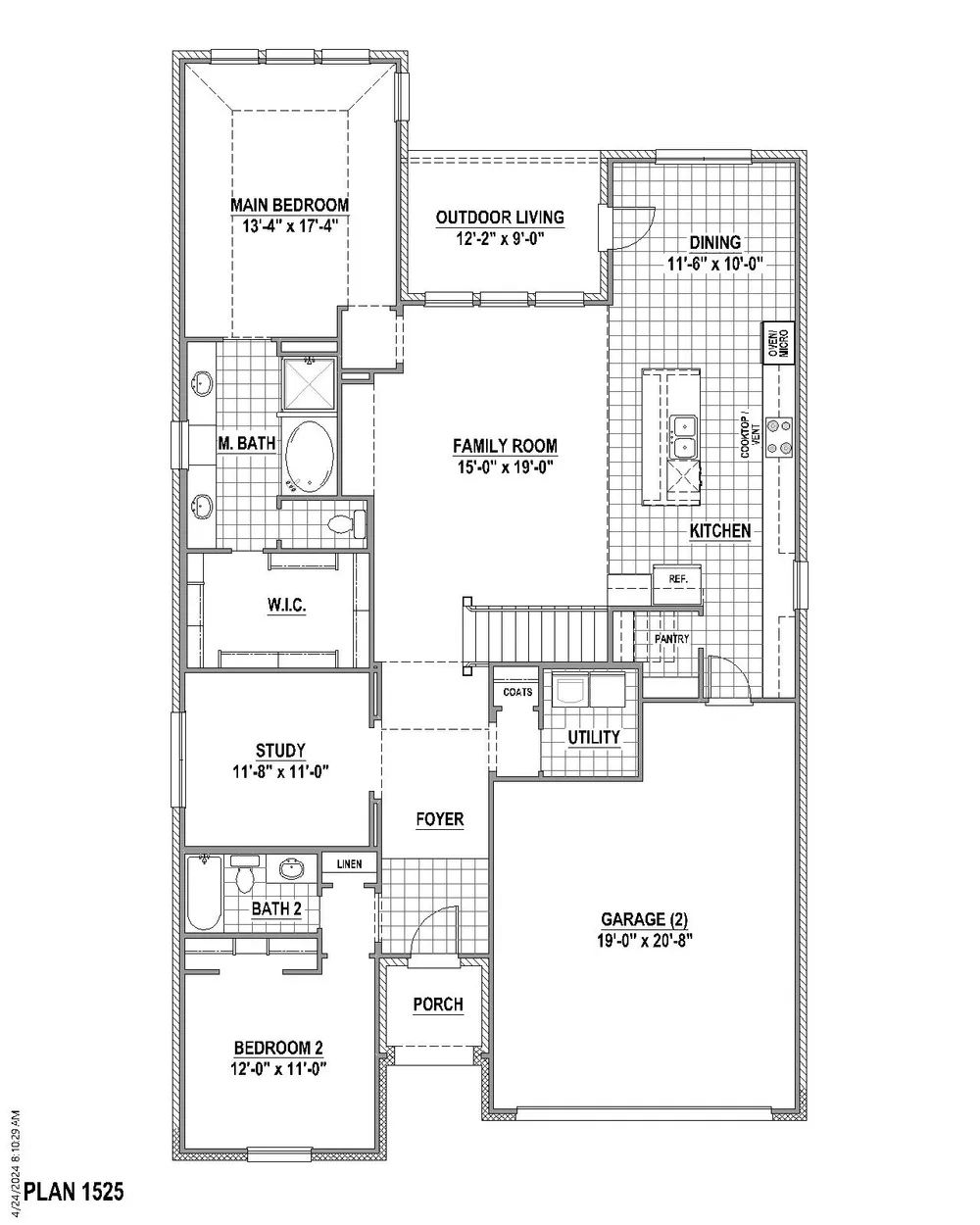
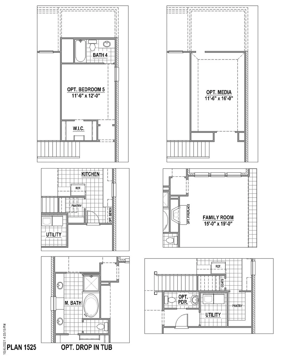
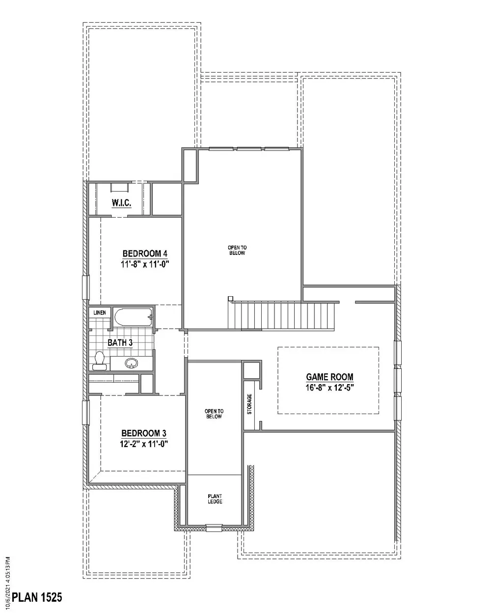
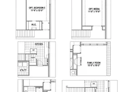
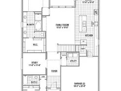
This thoughtfully designed home offers two bedrooms on the main level and two upstairsan ideal layout for families of all sizes. As you step inside, youll be greeted by impressive 18-foot ceilings that flow into the family room, highlighted by a stunning double set of stacked windows. The kitchen is a dream for any home chef, complete with a walk-in pantry, generous countertop space and a window that fills the space with natural light. Enjoy seamless indoor-outdoor living with the included 12 ft x 9 ft covered patio, perfect for relaxing or entertaining. The open game room upstairs overlooks the main living area and includes a dedicated closet for games and more while the adjacent media room is an ideal space for movie nights. The 2nd floor bedrooms are tucked away from the activity, providing a quiet retreat. Additional features include a 3-car garage with extra storage space and a private study, perfect for remote work or a hobby room. This home combines style, space and versatilitycome see all it has to offer today.
Floor plan5 images
Specifications
Address
728 Treeline Way
City, St, Zip
Mansfield, TX 76063
Price
$689,000
Bedrooms
4
Full baths
4
Half baths
1
Square Feet
3,141
Garages
3-Car
Status
ACTIVE
Estimated completion date
1/31/2026
Map
7
photos
EXTERIORINTERIORFLOORPLANFLOORPLANFLOORPLANFLOORPLANFLOORPLAN
125 S. Kansas Avenue | Olathe, KS | 913-732-8070
©2026 Homebuilders.com. All rights reserved.
Privacy Policy