Back to search results
ACTIVE
$1,725,000
1460 Copper Point DriveProsper, TX 75078
5
beds
4+
baths
4,727
sqft
3-car
garage
Standard payment est:$10,700/mo
About this home
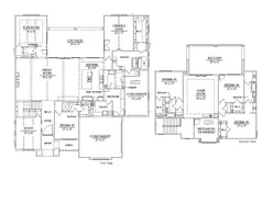
Stunning custom home in Prosper! This home has the perfect plan for entertaining. Wide open great room that opens to large, covered patio - allowing for indoor-outdoor parties. Chefs' kitchen has all the latest in appliances and also features a large walk-in pantry. Private owners' retreat that overlooks the back yard, boast a spa like bath with huge walk-in shower and elegant free-standing tub. Study on the front of the home features tall ceilings, French doors, and window that overlook the covered front porch. Gameroom or Media room and powder bath are just off the main living area, adding to the great entertaining opportunities in this home. Additional first floor bedroom with full bath makes a great guest suite. Upstairs showcases a large game room with balcony and 3 additional bedrooms, each with access to bath and walk-in closet.
Floor plan1 image
Specifications
Address
1460 Copper Point Drive
City, St, Zip
Prosper, TX 75078
Price
$1,725,000
Bedrooms
5
Full baths
4
Half baths
1
Square Feet
4,727
Garages
3-Car
Status
ACTIVE
Estimated completion date
11/29/2025
Map
50
photos
INTERIORINTERIORINTERIORINTERIORINTERIORINTERIORINTERIOR
125 S. Kansas Avenue | Olathe, KS | 913-732-8070
©2026 Homebuilders.com. All rights reserved.
Privacy Policy