Back to search results
ACTIVE
$647,585
609 Damsel June StreetLewisville, TX 75056
3
beds
2+
baths
2,424
sqft
2-car
garage
Standard payment est:$4,017/mo
About this home
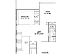
Comfortable elegance within this delightful 3 bedroom, 2.5 bath triplex/townhome nestled in the desirable and prestigious Castle Hills Northpointe Master Planned Community. This beautifully designed townhome offers the main bedroom downstairs and media room upstairs for a more relaxed entertaining experience. Enclosed within the home is a design built for the comforts of single family living with the modern and low-maintenance lifestyle of a townhome. An open concept brimming of natural light with floor to ceiling windows offers a warm and welcoming home. The heart of the home features wood floors downstairs and on the staircase, spacious kitchen equipped with the top-of-the-line appliances (double ovens), ample quartz counter space with custom cabinetry ideal for both everyday living and entertaining. The main bedroom, located downstairs, is a serene private retreat with a luxurious main bathroom and walk-in closet. A spacious loft offers additional living space, perfect for a home office or a playroom. Our townhome offers a covered patio, private backyard appointed with artificial turf that is perfect for relaxation or entertaining all with a 2-car garage.
Floor plan3 images
Specifications
Address
609 Damsel June Street
City, St, Zip
Lewisville, TX 75056
Price
$647,585
Bedrooms
3
Full baths
2
Half baths
1
Square Feet
2,424
Garages
2-Car
Status
ACTIVE
Estimated completion date
1/29/2026
Map
32
photos
EXTERIORINTERIORINTERIORINTERIORINTERIORINTERIORINTERIOR
125 S. Kansas Avenue | Olathe, KS | 913-732-8070
©2026 Homebuilders.com. All rights reserved.
Privacy Policy