Back to search results
ACTIVE
$565,000
1817 Flowerfield LaneMansfield, TX 76063
4
beds
2+
baths
2,315
sqft
2-car
garage
Standard payment est:$3,505/mo
About this home
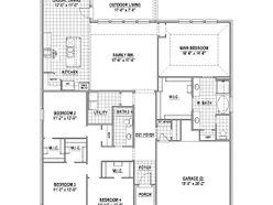
Discover the charm and comfort of our stunning 60' Inventory homeour most popular floor plan to date, and for good reason. This beautifully designed 4 bedroom, 2.5 bath home strikes the perfect balance between functionality and inviting warmth. Step inside to find a spacious living room that effortlessly connects to the heart of the home, creating a seamless flow for everyday living and entertaining. One of its standout features is the cozy bump-out in the breakfast nook, adding architectural interest and providing the perfect sunlit space to enjoy your morning coffee or a casual family meal. The home is packed with thoughtfully selected upgrades that elevate its style and comfort, from modern finishes to quality fixtures that add a touch of luxury to every room. With its personalized touches and cozy atmosphere, this home offers more than just square footageit offers a lifestyle. Its not just a house; its a place youll love to call home.
Floor plan2 images
Specifications
Address
1817 Flowerfield Lane
City, St, Zip
Mansfield, TX 76063
Price
$565,000
Bedrooms
4
Full baths
2
Half baths
1
Square Feet
2,315
Garages
2-Car
Status
ACTIVE
Estimated completion date
12/15/2025
Map
32
photos
EXTERIORINTERIORINTERIORINTERIORINTERIORINTERIORINTERIOR
125 S. Kansas Avenue | Olathe, KS | 913-732-8070
©2026 Homebuilders.com. All rights reserved.
Privacy Policy