Back to search results
ACTIVE
$961,275
2611 Harvest LaneProsper, TX 75078
5
beds
4+
baths
3,441
sqft
2-car
garage
Standard payment est:$5,963/mo
Get pre-qualified
About this home
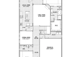
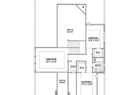
Nestled on an oversized North facing corner lot in the highly sought-after Star Trail community, this stunning 5 bedroom, 4 bathroom home offers luxurious living with an ideal blend of functionality and style. Designed for comfort and entertainment, the first floor features the spacious main suite, a secondary bedroom and a private studyperfect for remote work or quiet reading. The heart of the home is the chef-inspired kitchen, showcasing ceiling-height cabinetry, commercial-grade appliances and upgraded countertops, all open to a grand two-story living room with expansive picture windows that flood the space with natural light and offer views of the large covered patio.Upstairs, three additional bedrooms, two full baths, game room and a dedicated media room provide ample space for family and guests. Thoughtfully upgraded throughout, this home features extensive hardwood flooring, elegant wood stairs, designer lighting and premium hardware selections. Whether hosting a movie night, enjoying outdoor dining or simply relaxing in one of the multiple living spaces, this home delivers comfort and sophistication at every turn. Located in Star Trail, with access to top-tier amenities and exemplary schools, this property is the perfect place to call home.
Floor plan4 images
Specifications
Address
2611 Harvest Lane
City, St, Zip
Prosper, TX 75078
Price
$961,275
Bedrooms
5
Full baths
4
Half baths
1
Square Feet
3,441
Garages
2-Car
Status
ACTIVE
Estimated completion date
11/30/2025
Map
33
photos
EXTERIORINTERIORINTERIORINTERIORINTERIORINTERIORINTERIOR
125 S. Kansas Avenue | Olathe, KS | 913-732-8070
©2025 Homebuilders.com. All rights reserved.
Privacy Policy