Back to search results
ACTIVE
$647,520
3109 Sir Judge DriveLewisville, TX 75056
4
beds
3+
baths
2,701
sqft
2-car
garage
Standard payment est:$4,016/mo
About this home
This beautiful Townhome, built by renowned builder American Legend Homes, is located in the highly sought-after Castle Hills master-planned community in Lewisville, TX. Featuring 4 spacious bedrooms, 3 baths, bath, game room, media room and 2-car garage, this home merges the comforts of single-family living with the low-maintenance lifestyle of a townhome. The main bedroom, conveniently located downstairs, offers a peaceful retreat with plenty of natural light and modern finishes. The open-concept living area is filled with natural light, thanks to floor-to-ceiling windows, customized with wood floors downstairs. The heart of the home is its state-of-the-art kitchen, perfect for cooking and entertaining. With high-end appliances, quartz countertops, custom cabinets and a functional layout, this kitchen will impress even the most discerning chefs. Enjoy movie nights and endless fun with the dedicated media room and game room, providing the ultimate spaces for relaxation and entertainment. Whether you're hosting gatherings or enjoying quiet moments, this townhome offers the perfect blend of luxury, comfort and convenience, all within the prestigious Castle Hills Northpointe community.
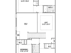
Floor plan3 images
Specifications
Address
3109 Sir Judge Drive
City, St, Zip
Lewisville, TX 75056
Price
$647,520
Bedrooms
4
Full baths
3
Half baths
1
Square Feet
2,701
Garages
2-Car
Status
ACTIVE
Estimated completion date
11/19/2025
Map
30
photos
EXTERIORINTERIORINTERIORINTERIORINTERIORINTERIORINTERIOR
125 S. Kansas Avenue | Olathe, KS | 913-732-8070
©2026 Homebuilders.com. All rights reserved.
Privacy Policy