Back to search results
ACTIVE
$399,345
6032 Silverstein StreetFort Worth, TX 76126
3
beds
2
baths
1,682
sqft
2-car
garage
Standard payment est:$2,477/mo
Get pre-qualified
About this home
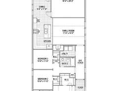
Thoughtfully Designed, Effortlessly Livable A Perfect Fit for Modern Living!Welcome to your new homea beautifully crafted 3 bedroom, 2 bath garden home that delivers style, comfort and low-maintenance living in the heart of Ventana. This home offers clean streetscapes and a welcoming first impression from the moment you arrive. A rear-entry, 2-car garage adds to the unique character and charm of the exterior. Step inside to discover a spacious open-concept layout that maximizes every square foot. The highlight is a generously sized kitchen, thoughtfully designed with an abundance of cabinetry, sleek quartz counter tops and stainless appliancesperfect for daily living or entertaining friends and family. The private main suite offers a quiet escape with two walk-in closets and spa-inspired bath, while two additional bedrooms provide flexibility for guests, a home office or creative space. Every room is designed with livability and flow in mind, making it easy to feel right at home. Outside, enjoy a manageable yardjust the right size for relaxing or hosting without the constant upkeep. Whether you're simplifying your lifestyle, buying your first home or looking for smart space in a vibrant community, this home checks all the boxes. With easy access to neighborhood pools, parks, trails and community amenities along with the unique character of rear-entry living, this home is a rare blend of comfort, efficiency and charm.
Floor plan2 images
Specifications
Address
6032 Silverstein Street
City, St, Zip
Fort Worth, TX 76126
Price
$399,345
Bedrooms
3
Full baths
2
Square Feet
1,682
Garages
2-Car
Status
ACTIVE
Estimated completion date
11/17/2025
Builder
American Legend Homes
Map
31
photos
EXTERIORINTERIORINTERIORINTERIORINTERIORINTERIORINTERIOR
125 S. Kansas Avenue | Olathe, KS | 913-732-8070
©2025 Homebuilders.com. All rights reserved.
Privacy Policy