Back to search results
ACTIVE
$999,000
587 Mayfair LaneFrisco, TX 75033
4
beds
4
baths
3,517
sqft
3-car
garage
Standard payment est:$6,197/mo
Get pre-qualified
About this home
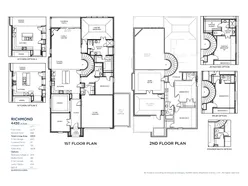
This popular open-concept home features a dramatic two-story family room with a corner fireplace and a stunning curved staircase. The beautiful gourmet kitchen includes quartz countertops, upgraded built-in appliances, and a spacious walk-in pantry. The generous master retreat offers a large bathroom with a separate tub and shower, as well as dual sinks with separate countertops. A guest bedroom and a study are located on the main floor, with the guest bathroom featuring a walk-in shower. Bedroom 4 includes a private bathroom. Additional upgrades include premium flooring, box windows in the family and game rooms, and a metal railing that overlooks the family room from the game room.
Floor plan1 image
Specifications
Address
587 Mayfair Lane
City, St, Zip
Frisco, TX 75033
Price
$999,000
Bedrooms
4
Full baths
4
Square Feet
3,517
Garages
3-Car
Status
ACTIVE
Builder
Shaddock Homes
Community
Estates at Rockhill
Map
38
photos
EXTERIORINTERIORINTERIORINTERIORINTERIORINTERIORINTERIOR
125 S. Kansas Avenue | Olathe, KS | 913-732-8070
©2025 Homebuilders.com. All rights reserved.
Privacy Policy