Back to search results
ACTIVE
$599,900
128 Highgate CourtBoyd, TX 76023
4
beds
3
baths
3,379
sqft
3-car
garage
Standard payment est:$3,721/mo
Get pre-qualified
About this home
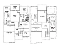
This beautifully designed two-story home features an open-concept layout ideal for both everyday living and entertaining. The first floor offers two spacious bedrooms, including a luxurious private owners suite complete with a spa-inspired bathroomfeaturing dual vanities, a walk-in shower, a freestanding soaking tub, and a generous walk-in closet.Enjoy seamless flow between the living, dining, and kitchen areas, perfect for gatherings. Additional main floor highlights include a dedicated study, a convenient utility room, and a mudroom for added organization.Upstairs, youll find two more bedrooms, an open loft area ideal for a secondary living space or office, and a large media/game roomperfect for movie nights or playtime.This home effortlessly blends style, function, and comfort to suit a variety of lifestyles.
Floor plan1 image
Specifications
Address
128 Highgate Court
City, St, Zip
Boyd, TX 76023
Price
$599,900
Bedrooms
4
Full baths
3
Square Feet
3,379
Garages
3-Car
Status
ACTIVE
Estimated completion date
6/30/2025
Builder
Our Country Homes
Map
44
photos
INTERIORINTERIORINTERIORINTERIORINTERIORINTERIORINTERIOR
125 S. Kansas Avenue | Olathe, KS | 913-732-8070
©2025 Homebuilders.com. All rights reserved.
Privacy Policy