Back to search results
ACTIVE
$476,990
804 Trailing Vine WayLavon, TX 75166
4
beds
3
baths
2,999
sqft
2-car
garage
Standard payment est:$2,959/mo
Get pre-qualified
About this home
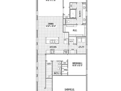
Incredible floor plan with 4 bedrooms (2 down), 3 bathrooms, dining room, game room, separate media room, outdoor covered area and a 2-car garage. This open, 2 story home with high ceilings is finished out with wood flooring, upgraded designer tiles and carpets, custom cabinetry, upgraded countertops and 8 foot doors on a beautiful homesite. As you enter the foyer and extended foyer, you will pass the secondary bedroom on the main level, then you will enter the open kitchen, dining area and family room. On the rear of the home you will find the main bedroom with a large walk-in closet, dual vanities and walk-in shower. Upstairs you will find a spacious game room with two additional bedrooms sharing a bath in addition to a wonderful media room. Make this home yours in the newest master planned community of Hillstead and enjoy.
Floor plan5 images
Specifications
Address
804 Trailing Vine Way
City, St, Zip
Lavon, TX 75166
Price
$476,990
Bedrooms
4
Full baths
3
Square Feet
2,999
Garages
2-Car
Status
ACTIVE
Estimated completion date
7/1/2025
Builder
American Legend Homes
Map
34
photos
EXTERIORINTERIORINTERIORINTERIORINTERIORINTERIORINTERIOR
125 S. Kansas Avenue | Olathe, KS | 913-732-8070
©2025 Homebuilders.com. All rights reserved.
Privacy Policy