Open Navigation Menu
Shop for homes
Get your buying power
How it works
Sign in
Shop for homes
Get your buying power
How it works
Contact us
For home builders
For lenders
My account
Sign Out
Back to search results
ACTIVE
$446,000
3510 Randall Terrace
Grand Prairie, TX 76065
3
beds
2
baths
1,930
sqft
Community:
Heritage Towne
Heritage Towne Home LLC
Standard payment est:
$2,766/mo
Get pre-qualified
Get more info
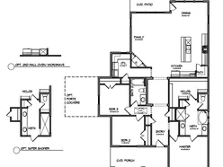
Floor plan
1 image
Specifications
Address
3510 Randall Terrace
City, St, Zip
Grand Prairie, TX 76065
Price
$446,000
Bedrooms
3
Full baths
2
Square Feet
1,930
Status
ACTIVE
Estimated completion date
12/5/2025
Builder
Heritage Towne Home LLC
Community
Heritage Towne
Show more
Map
43
photos
See all 43 photos
Shop for homes
Get your buying power
How it works
For builders
For lenders
Financing info
Contact us
125 S. Kansas Avenue | Olathe, KS | 913-732-8070
©2025 Homebuilders.com. All rights reserved.
Privacy Policy