Back to search results
ACTIVE
$849,000
4800 Wreath LaneCelina, TX 75078
4
beds
4+
baths
3,770
sqft
3-car
garage
Standard payment est:$5,266/mo
Get pre-qualified
About this home
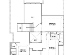
Welcome to the perfect dream 2-story home! This beautiful floor plan has been perfectly designed with you and your family in mind. From the moment you walk in, you will notice every thoughtful detail- from the ample amounts of storage places, to the soaring ceilings and abundance of windows throughout the home. The first floor features a private guest bedroom with an en-suite bath, 2 dining spaces with a Butlers pantry for easy entertaining, secluded study and wonderful kitchen with cabinets to the ceiling and living space. The main bedroom is conveniently located at the back of the home and features dual vanities, a large soaking tub and 2 great walk-in closets. The second floor opens to a large game room, the 2 secondary bedrooms each one having it's own attached bath and nice walk-in closet and a small bonus space perfect for a reading or study nook. This home Faces North/West.
Floor plan3 images
Specifications
Address
4800 Wreath Lane
City, St, Zip
Celina, TX 75078
Price
$849,000
Bedrooms
4
Full baths
4
Half baths
1
Square Feet
3,770
Garages
3-Car
Status
ACTIVE
Estimated completion date
12/8/2024
Map
32
photos
EXTERIORINTERIORINTERIORINTERIORINTERIORINTERIORINTERIOR
125 S. Kansas Avenue | Olathe, KS | 913-732-8070
©2025 Homebuilders.com. All rights reserved.
Privacy Policy